Prodej chaty v chatové oblasti u obce Boříkovi
Prodej chaty v chatové oblasti u obce Boříkovi
Hledáte únik z městského shonu? Nabízíme vám ke koupi útulnou, patrovou chatu v malebné oblasti Boříkovi, která kombinuje poctivou cihlovou stavbu s absolutním klidem polosamoty.
Tato nemovitost je ideální pro ty, kteří chtějí trávit víkendy v přírodě, ale vyžadují komfort a dobrou dostupnost.
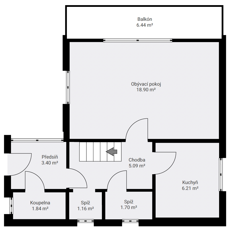
Dispozice a prostor: Chata o užitné ploše 60 m² nabízí 3 světlé pokoje. Dům je patrový, což přirozeně odděluje denní a odpočinkovou zónu.
Velkorysý suterén: Celý objekt je podsklepen (30 m²), což poskytuje dostatek prostoru pro dílnu, uskladnění úrody nebo sezónního vybavení.
Zahrada a relaxace: Pozemek o rozloze 489 m² nabízí udržovanou zahradu (436 m²) s venkovním ohništěm – ideální místo pro letní večery a sledování západů slunce.
Dobrý stav: Objekt je pečlivě udržovaný a připravený k okamžitému užívání. Chata je částečně vybavená, takže se můžete hned nastěhovat a zbytek doladit podle svého vkusu.
Kolinec je branou do Šumavy, obklopený lesy a čistým vzduchem. Přestože si zde užijete ticho polosamoty, civilizace není daleko:
Doprava: Přístup přímo po silnici, v obci je k dispozici také autobusové spojení.
Okolí: Ideální pro turistiku, cykloturistiku a houbaření.
Prohlídky jsou možné po předchozí domluvě. Pro více informací o této nemovitosti nebo sjednání prohlídky nás prosím kontaktujte nebo vyplňte níže uvedený formulář, rádi Vám pomůžeme.
2.NP

1.NP

Garáž

1 640 000,- Kč
- včetně provize a právního servisu
Při zájmu více klientů bude uspořádána online aukce nemovitosti. Potencionální zájemci budou vyzváni v určitý den a hodinu k zúčastnění se aukce, kde cena nemovitosti bude stanovena nejvyšším příhozem. Trvání aukce je omezeno na 30 min, pokud přijde příhoz v poslední minutě čas aukce se prodlužuje o 3 min. Pro více informací o aukci se dotazujte při prohlídce nemovitosti či v zaslaných materiálech k aukci nemovitosti.
Klientům mohu nabídnout záruku jistoty a kvality poskytovaných služeb, přátelské a spolehlivé jednání či kompletní servis od prvního do posledního vzájemného setkání, např. stanovení reálné prodejní ceny, prohlídky nemovitosti, převod nemovitosti na nového majitele, daňové povinnosti atd.