Prodej komerčního objektu v Klatovech
na Domažlickém předměstí
Prodej komerčního objektu v Klatovech
na Domažlickém předměstí
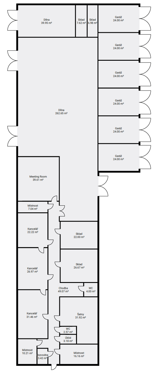
Nabízíme k prodeji komerční obchodní prostory nacházející se na Domažlickém předměstí. Tyto prostory jsou ideální pro podnikatele, kteří hledají místo s výbornou dostupností a variabilními možnostmi využití. S celkovou výměrou parcely 4589 m2 a zastavěnou plochou 825 m2 jsou tyto prostory vhodné i pro jiné typy podnikání.
Obchodní prostory se nacházejí v cihlové stavbě, která je udržována v dobrém stavu. Díky přízemnímu umístění a bezbariérovému přístupu je zajištěna pohodlná dostupnost pro všechny zákazníky i zaměstnance. Další výhodou je šest prostorných garáží, které poskytují dostatek parkovacích míst pro potřeby společnosti nebo parkování různé techniky, možnost využít jako skladový prostor.
Prostorné dílny v objektu nabízejí široké možnosti komerčního využití, ať už jde o výrobu, skladování či jiné obchodní činnosti. Nechybí zde sociální zázemí pro zaměstnace a administrativní zázemí v počtu 4 kanceláří o výměrách (39, 22, 27, 31 m2).
Elektrická energie je řešena dvěmi způsoby a to vlastní trafostanicí na pozemku 22/0,4 kV a dalším samostatným přívodem, který je využíván s hlavním vypínačem 3x 50 A. Voda a kanalizace obecní.
Příjezdová komunikace je opatřena vjezdovou bránou s dálkovým ovládáním.
V současné době není k dispozici PENB.
Prohlídky jsou možné po předchozí domluvě. Pro více informací o této nemovitosti nebo sjednání prohlídky nás prosím kontaktujte nebo vyplňte níže uvedený formulář, rádi Vám pomůžeme.

Na dotaz
+ DPH dle platné legislativy
- včetně provize a právního servisu
Při zájmu více klientů bude uspořádána online aukce nemovitosti. Potencionální zájemci budou vyzváni v určitý den a hodinu k zúčastnění se aukce, kde cena nemovitosti bude stanovena nejvyšším příhozem. Trvání aukce je omezeno na 30 min, pokud přijde příhoz v poslední minutě čas aukce se prodlužuje o 3 min. Pro více informací o aukci se dotazujte při prohlídce nemovitosti či v zaslaných materiálech k aukci nemovitosti.
Klientům mohu nabídnout záruku jistoty a kvality poskytovaných služeb, přátelské a spolehlivé jednání či kompletní servis od prvního do posledního vzájemného setkání, např. stanovení reálné prodejní ceny, prohlídky nemovitosti, převod nemovitosti na nového majitele, daňové povinnosti atd.